Bergweg 16

Maastricht

Verkocht

Dit charmante herenhuis uit de jaren ’30 biedt een royaal woonoppervlak van 211 m² en is gelegen op een uitstekende woonlocatie in de geliefde wijk Sint Pieter. De woning beschikt over een riante, open living, zes slaapkamers en twee stijlvolle badkamers. De fraai aangelegde en ommuurde stadstuin ligt op het noordwesten, beschikt over een achterom en biedt toegang tot een privé garage.

Het woonhuis met veel zorg en oog voor detail gerenoveerd, waarbij gekozen is voor hoogwaardige en luxe materialen. Sindsdien is het pand uitstekend onderhouden, met behoud van karakter en sfeer.

De ligging is bijzonder gunstig: op loopafstand bevinden zich diverse winkels, een basisschool met BSO, sportfaciliteiten en het historische stadscentrum van Maastricht. Ook zijn de uitvalswegen richting Luik, Heerlen en Sittard snel en gemakkelijk bereikbaar.

INDELING

Souterrain:
Het souterrain bestaat uit twee ruime kelderruimten met afmetingen van respectievelijk 835 x 383 cm en 677 x 288 cm, ideaal voor opslag, hobbyruimte of wijnkelder.

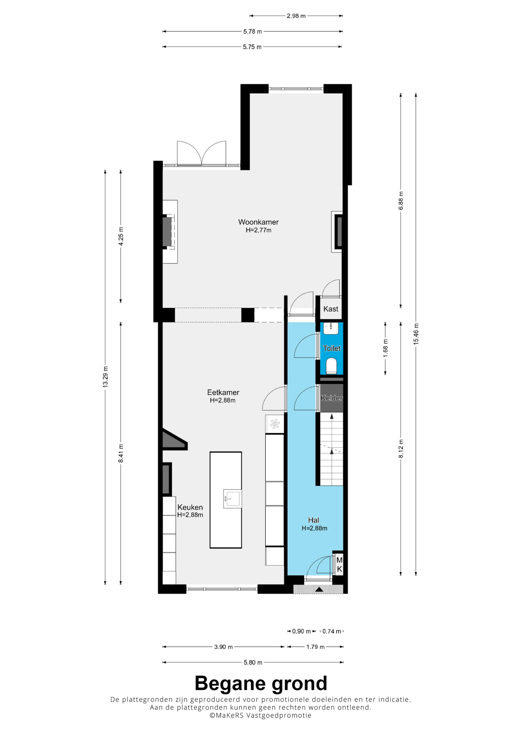
Begane grond:
De stijlvolle entree met originele glas-in-loodramen en tegelvloer biedt toegang tot de meterkast, garderobekast en het souterrain. De moderne toiletruimte is voorzien van een wandcloset en fontein.
De open living van circa 65 m² is een prachtige, lichte ruimte met een hoogwaardige parketvloer in ‘Hongaarse punt’, openslaande deuren naar de tuin en twee zitgedeeltes, waarvan één met een sfeervolle gashaard.
De luxe open keuken is volledig uitgerust met een kookeiland, inductiekookplaat, afzuigkap, vaatwasser, spoelbak, magnetron, oven, koel-vriescombinatie en een stijlvol composiet werkblad.

Aan de achterzijde bevindt zich de verzorgde, ommuurde stadstuin van circa 113 m². Deze buitenruimte is ingericht met meerdere terrassen, een buitenkeuken en een achterom die leidt naar de privé garage.

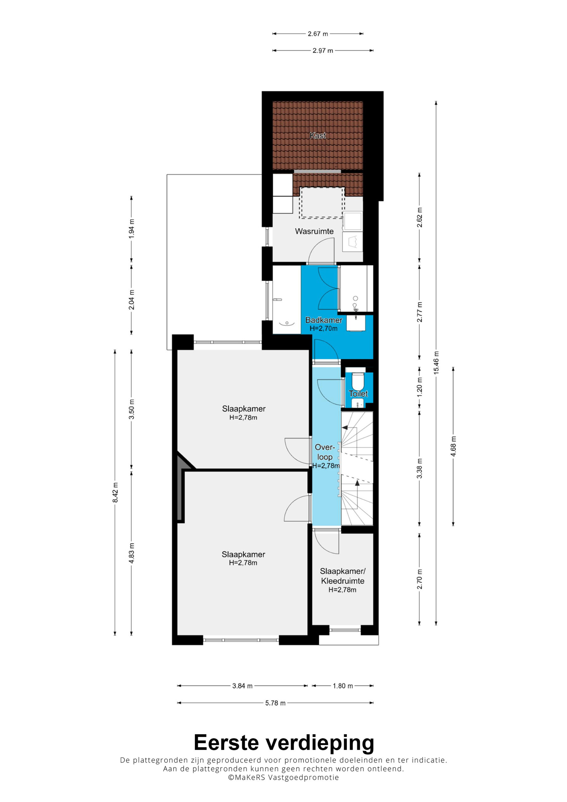
Eerste verdieping:
De overloop geeft toegang tot een separate toiletruimte met wandcloset en fontein.
Slaapkamer I, met een oppervlakte van 483 x 384 cm, is voorzien van airconditioning en houten vloerdelen. Slaapkamer II meet 384 x 350 cm en ook hier ligt een fraaie houten vloer en is airconditioning aanwezig. Slaapkamer III (270 x 180 cm) is ingericht als ruime inloopkast met voldoende legplanken en groot hanggedeelte.
De luxe eerste badkamer van circa 277 x 180 cm beschikt over een vaste wastafel met meubelombouw, een ruime inloopdouche, een ligbad en directe toegang tot de wasruimte. Deze aangrenzende ruimte van 297 x 262 cm biedt plaats aan wasmachine en droger en beschikt over praktische kastruimte.

Tweede verdieping:
Op deze verdieping bevinden zich nog drie slaapkamers. Slaapkamer IV heeft een afmeting van 429 x 383 cm, terwijl slaapkamer V (404 x 383 cm) voorzien is van houten vloerdelen en via een vaste trap toegang biedt tot de zolderverdieping. Beide slaapkamers zijn voorzien van airconditioning. Slaapkamer VI meet 273 x 180 cm.
De tweede badkamer, met een speelse indeling van circa 363/141 x 145 cm, is uitgerust met een wandcloset, een vaste wastafel en een inloopdouche.

Zolder:
Deze ruimte staat in open verbinding met slaapkamer V en is ingericht als entresol van 391 x circa 340 cm, met praktische inbouwkasten. Vanuit hier is de bergruimte van 312 x 175 cm bereikbaar, waar ook de cv-ketel is geplaatst (Netfit Topline, 2009, eigendom).

ALGEMEEN

De woning is voorzien van 10 zonnepanelen en beschikt aan de straatzijde over een aansluiting voor een elektrische laadpaal.
Alle ramen hebben dubbel glas en houten kozijnen die recentelijk opnieuw geschilderd zijn. In het hele huis zijn vliegenhorren geplaatst.

De garage is onderdeel van een VvE; de jaarlijkse bijdrage hiervoor bedraagt € 300.
Er bestaat de mogelijkheid tot het verkrijgen van maximaal twee parkeervergunningen, à circa € 80 per jaar.

VERDERE INFORMATIE

Disclaimer:
Deze presentatie is zo zorgvuldig mogelijk opgesteld, wijzigingen zijn voorbehouden, aangegeven maten zijn bij benadering. Aan deze presentatie kunnen dan ook geen rechten worden ontleend.

Schriftelijkheidsvereiste:
Ter bescherming van de belangen van zowel koper als verkoper, wordt uitdrukkelijk gesteld dat een koopovereenkomst met betrekking tot deze onroerende zaak eerst dan tot stand komt nadat koper en verkoper de koopovereenkomst hebben getekend.

Ontbinding:
De termijn die wordt opgenomen voor eventuele (overeengekomen) ontbindende voorwaarden (bijv. financieringsvoorbehoud) is in de regel 4 tot 6 weken na het sluiten van de mondelinge wilsovereenkomst.

Waarborgsom:
De waarborgsom/bankgarantie is 10% van de koopsom. De koper dient deze 3 dagen ná het vervallen van de ontbindende voorwaarden bij de desbetreffende notaris te deponeren.

Onderzoeksplicht van de koper:
Koper is te allen tijde gerechtigd voor eigen rekening een bouwkundige keuring te laten verrichten dan wel andere adviseurs te raadplegen teneinde een goed inzicht te verkrijgen over de staat van onderhoud.

Huurtoestellen:
Indien er in de woning huurtoestellen aanwezig zijn zoals CV-ketel, boiler, zonnepanelen, mechanische ventilatie etc. dan dienen deze door de koper te worden overgenomen.

Opkoopbescherming:
In de Gemeente Maastricht geldt vanaf 1 oktober 2022 een Huisvestingsverordening – opkoopbescherming voor woningen. Informeer bij de Gemeente Maastricht voor de voorwaarden.

Denkt u aan verkopen?

Heeft u interesse in een vrijblijvend verkoopadvies en bent u benieuwd naar onze werkwijze hoe wij uw woning succesvol kunnen verkopen?

Kenmerken

Overdracht
Aanvaarding: In overleg
Bouwvorm
Oppervlakte en inhoud
Indeling
Energie
Buitenruimte
Parkeergelegenheid
Secret Link