Hoge Kanaaldijk 14

Maastricht

Verkocht

Halfvrijstaand herenhuis (178 m²) met karakteristieke jaren ’30 details, een speelse indeling en prachtig uitzicht aan de Maas.

Op een unieke woonlocatie in het geliefde Sint Pieter, direct aan de Maas, bevindt zich dit charmante en halfvrijstaande herenhuis met een woonoppervlakte van circa 178 m². De woning ademt de sfeer van de jaren ’30 met onder meer een authentiek trappenhuis, hoge plafonds en royale raampartijen die zorgen voor een prachtige lichtinval. De speelse indeling biedt volop mogelijkheden voor gezinsbewoning, met vier slaapkamers en potentie voor het creëren van extra ruimte en comfort.

De woning verkeert in eenvoudige staat en dient gerenoveerd te worden. Daarbij behoort het realiseren van een tweede badkamer tot de mogelijkheden. De woonoppervlakte kan aanzienlijk worden vergroot door het plaatsen van een dakkapel op de zolderkamer op de tweede verdieping en een groot dakraam op de zolderverdieping.

Met een bijzonder breed front en ligging aan de Maas geniet deze woning van een zeldzaam vrij uitzicht. De ligging is uitzonderlijk: op loopafstand van natuurgebied Sint-Pietersberg, het stadspark en het historisch centrum van Maastricht. Ook winkelvoorzieningen en sportfaciliteiten bevinden zich op korte afstand. De uitvalswegen richting Luik, Heerlen en Sittard (A2) zijn uitstekend bereikbaar.

INDELING

Souterrain:
De overloop van 502 x 169 geeft toegang tot twee kelderruimtes.
De grootste ruimte meet circa 541 x 304 en is voorzien van een koekkoek aan de voorzijde. Hier is tevens de mogelijkheid om een trap te realiseren naar de voortuin, waardoor een gemakkelijke toegang ontstaat voor bijvoorbeeld een fietsenberging.
De tweede kelderruimte van circa 380 x 228 herbergt de recent geplaatste CV-installatie (eigendom, bouwjaar 2021).

Begane grond:
Via het voorportaal (294 x 184) kom je in de hal, die opvalt door het fraaie, originele trappenhuis. Hier bevindt zich tevens een ruime toiletruimte met fontein en de toegang tot het souterrain.
De woonkamer van circa 726 x 507 is voorzien van een eikenhouten parketvloer, open haard en geniet van uitzonderlijk veel lichtinval en een weids uitzicht op de Maas.
De eetkamer van 571/464 x 340 met erker is gelegen naast de keuken aan de voorzijde.
De keuken (340 x 233) is eenvoudig ingericht met een gaskookplaat, afzuigkap, oven en spoelbak.

Aan de voorzijde ligt een verzorgde voortuin met een breed front van circa 10 meter. Er is veel parkeerruimte beschikbaar voor het huis aan de ventweg (betaald parkeren/vergunninghouders).
De achtertuin is gesitueerd op het zuidoosten en biedt volledige privacy en een panoramisch uitzicht op de Maas. Via een achterom is de tuin ook vanaf de Maaskant bereikbaar.

Eerste verdieping:
De ruime overloop beschikt over twee praktische inbouwkasten en biedt toegang tot een balkon van 241 x 59. De grootste slaapkamer (Slaapkamer I) meet 502 x 357 en is voorzien van grote raampartijen en houten vloerdelen, met vrij uitzicht op de Maas. Slaapkamer II (462 x 344) heeft toegang tot de badkamer en een tweede balkon (ca. 152 x 100) op het westen. De badkamer van 337 x 244 is uitgerust met een toilet, vaste wastafel en een ligbad.

Tweede verdieping:
Ook deze verdieping beschikt over een ruime overloop met twee inbouwkasten en een fontein. Slaapkamer III (462 x 344) heeft eveneens twee inbouwkasten. Slaapkamer IV van circa 340 x 247 beschikt over twee inbouwkasten en een vaste wastafel. Aansluitend bevindt zich een extra kamer met dakraam, die momenteel dienstdoet als zolderkamer.

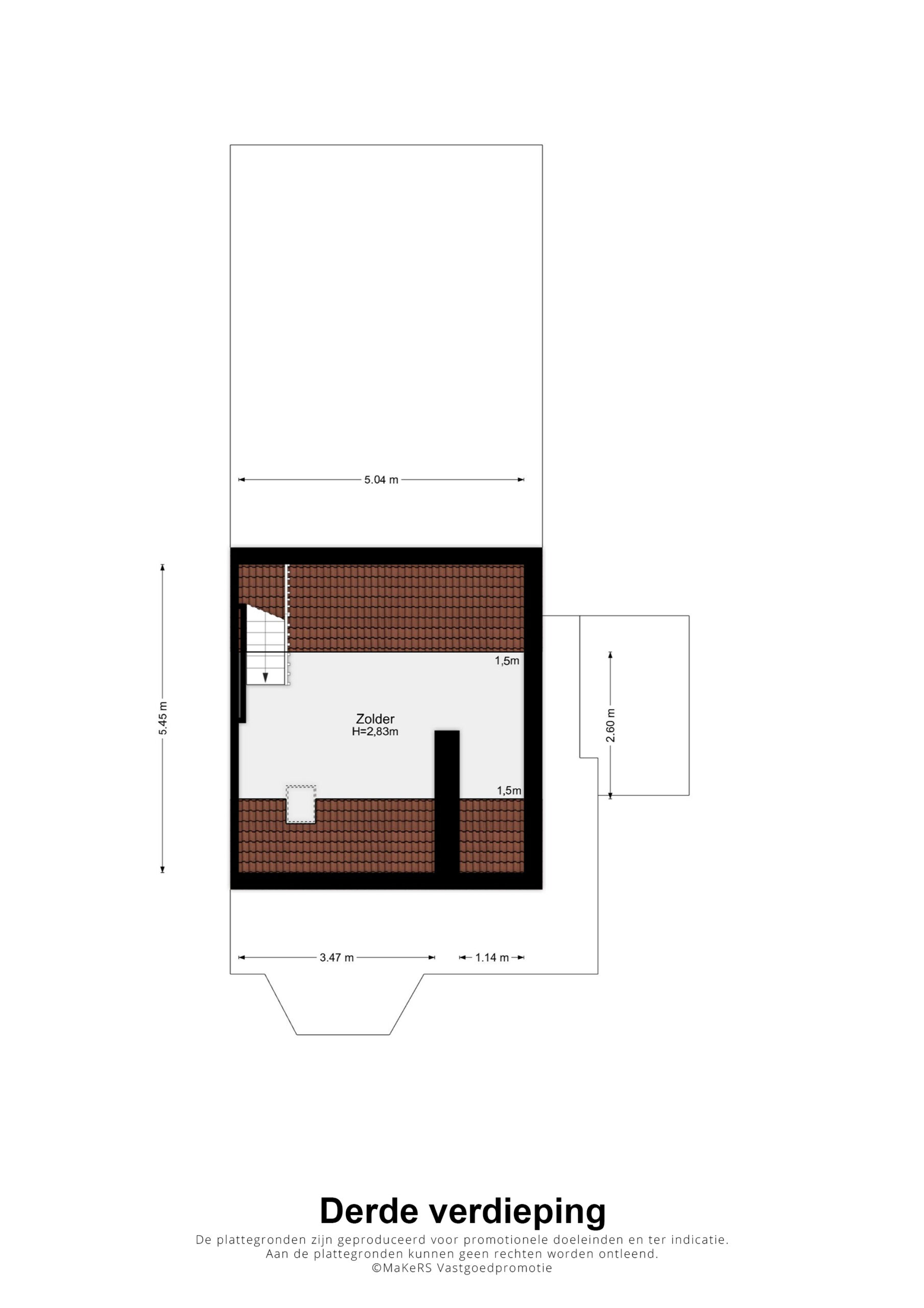
Derde verdieping:
Via een vaste trap vanuit de zolderkamer is de bovenste verdieping bereikbaar. Deze zolderruimte van 504 x 260 is voorzien van een dakraam en biedt diverse gebruiksmogelijkheden. Hier kan eenvoudig extra woonruimte worden gecreëerd. Het realiseren van een dakkapel op de zolderkamer op de tweede verdieping en een groter dakraam op de derde verdieping biedt bovendien de mogelijkheid om het woonoppervlak te vergroten. Ook het aanleggen van een tweede badkamer behoort tot de opties, wat het comfort aanzienlijk kan verhogen.

ALGEMEEN

Er is een bouwkundig rapport beschikbaar ter inzage.
Deze karakteristieke woning biedt een unieke kans om wonen op toplocatie te combineren met het realiseren van uw eigen woonwensen.
Met een magnifiek uitzicht op de Maas en een centrale ligging in een van de meest gewilde wijken van Maastricht, is dit een woning met ongekende potentie.

VERDERE INFORMATIE

Disclaimer:
Deze presentatie is zo zorgvuldig mogelijk opgesteld, wijzigingen zijn voorbehouden, aangegeven maten zijn bij benadering. Aan deze presentatie kunnen dan ook geen rechten worden ontleend.

Schriftelijkheidsvereiste:
Ter bescherming van de belangen van zowel koper als verkoper, wordt uitdrukkelijk gesteld dat een koopovereenkomst met betrekking tot deze onroerende zaak eerst dan tot stand komt nadat koper en verkoper de koopovereenkomst hebben getekend.

Ontbinding:
De termijn die wordt opgenomen voor eventuele (overeengekomen) ontbindende voorwaarden (bijv. financieringsvoorbehoud) is in de regel 4 tot 6 weken na het sluiten van de mondelinge wilsovereenkomst.

Waarborgsom:
De waarborgsom/bankgarantie is 10% van de koopsom. De koper dient deze 3 dagen ná het vervallen van de ontbindende voorwaarden bij de desbetreffende notaris te deponeren.

Onderzoeksplicht van de koper:
Koper is te allen tijde gerechtigd voor eigen rekening een bouwkundige keuring te laten verrichten dan wel andere adviseurs te raadplegen teneinde een goed inzicht te verkrijgen over de staat van onderhoud.

Huurtoestellen:
Indien er in de woning huurtoestellen aanwezig zijn zoals CV-ketel, boiler, zonnepanelen, mechanische ventilatie etc. dan dienen deze door de koper te worden overgenomen.

Opkoopbescherming:
In de Gemeente Maastricht geldt vanaf 1 oktober 2022 een Huisvestingsverordening – opkoopbescherming voor woningen. Informeer bij de Gemeente Maastricht voor de voorwaarden.

Denkt u aan verkopen?

Heeft u interesse in een vrijblijvend verkoopadvies en bent u benieuwd naar onze werkwijze hoe wij uw woning succesvol kunnen verkopen?

Kenmerken

Overdracht
Aanvaarding: In overleg
Bouwvorm
Oppervlakte en inhoud
Indeling
Energie
Buitenruimte
Parkeergelegenheid
Secret Link