Papenweg 88

Maastricht

Verkocht

Dit riante en lichte herenhuis (ca. 200 m²) verkeert in uitstekende staat van onderhoud en biedt maar liefst vijf slaapkamers, met bovendien de mogelijkheid om extra slaapkamers en/of een tweede badkamer te realiseren. Het huis beschikt over een charmante voortuin en een fraai aangelegde, diepe achtertuin op het westen met achterom.
Bijzonder aantrekkelijk zijn het extra brede vooraanzicht van de woning en de authentieke details, zoals het prachtige trappenhuis, de paneeldeuren en de hoge plafonds.

Het woonhuis is gelegen in de geliefde wijk Sint Pieter. In de directe omgeving bevinden zich diverse winkels, een basisschool met buitenschoolse opvang, sportfaciliteiten, watersport (MCC en Treech) en het prachtige natuurgebied Sint-Pietersberg. Het historische stadscentrum ligt op korte afstand, terwijl de uitvalswegen richting Luik en Heerlen/Sittard uitstekend bereikbaar zijn.

INDELING

Souterrain:
Kelder van ongeveer 27 m².

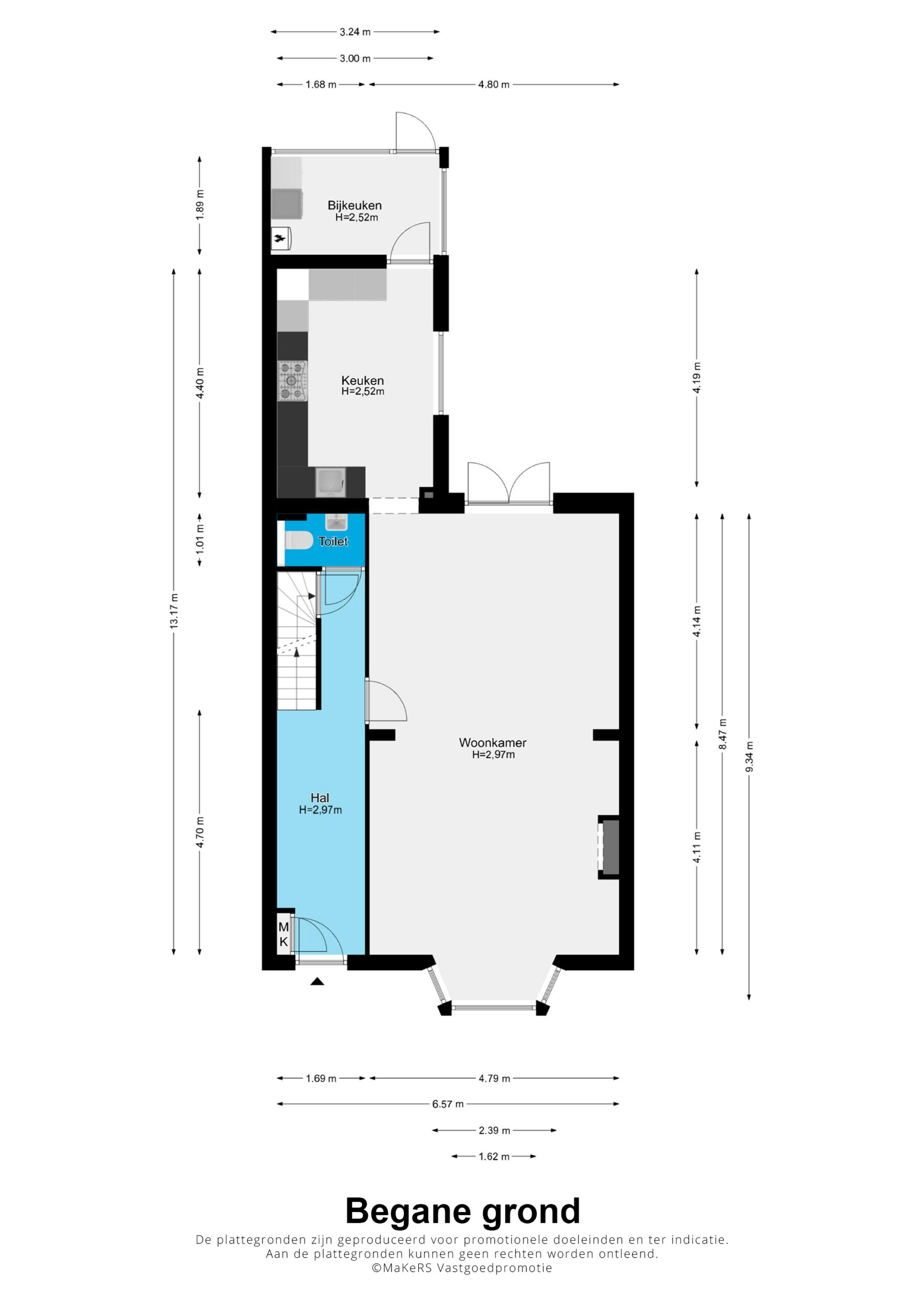
Begane grond:
Hal met een terrazzovloer, een mooi trappenhuis en toegang tot de kelder en de meterkast.
De moderne toiletruimte is voorzien van een wandcloset en een fontein.
De lichte living meet 847 bij 479 cm, heeft eikenhouten vloerdelen, een erker, gashaard, toegang tot de keuken en openslaande deuren naar de tuin.
De deels open keuken heeft een afmeting van 440 bij 300 cm, een tegelvloer en een moderne inrichting met rvs werkblad, gaskookplaat, afzuigkap, combi-oven, vaatwasser, diepvries en koelkast, met doorgang naar de bijkeuken. Deze bijkeuken meet 324 bij 189 cm, bevat de opstelling voor de cv-ketel (huur), aansluitingen voor wasmachine en droger, en biedt toegang tot de tuin.

De voortuin en de diepe achtertuin van circa 102 m² zijn fraai aangelegd. De achtertuin ligt op het westen en beschikt over een achterom naar de Burg. Ceulenstraat.

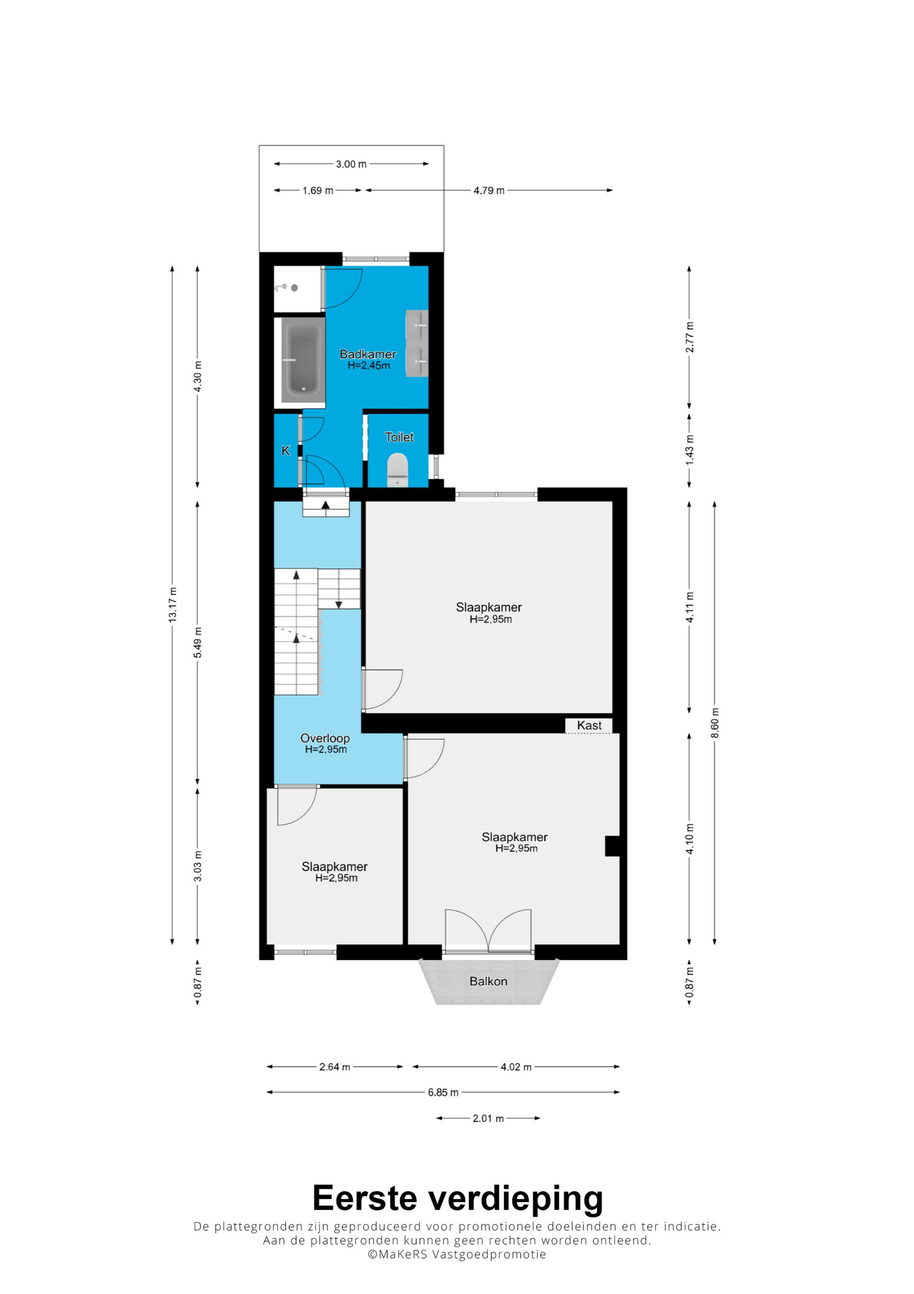
Tussenverdieping:
Op de eerste verdieping vindt u een tussenbordes dat toegang geeft tot de badkamer. De badkamer (430 x 300 cm) is uitgerust met een ligbad, inloopdouche, vaste dubbele wastafel met meubel, ingebouwde kastruimte en een toilet.

Eerste verdieping:
De overloop leidt naar drie slaapkamers.
Slaapkamer I meet 479 bij 411 cm en heeft een ingebouwde kastenwand. Slaapkamer II, 410 bij 402 cm, beschikt over een muurkast, rolluik en openslaande deuren naar het balkon. Slaapkamer III meet 303 bij 264 cm en is voorzien van een rolluik.

Tweede verdieping:
Overloop met toegang tot twee slaapkamers en zolderkamer.
Slaapkamer IV, 329 bij 306 cm, heeft eikenhouten vloerdelen, terwijl slaapkamer V 417 bij 327 cm is. Daarnaast is er een zolderberging van 482 bij 417 cm met dakraam (die mogelijk gerenoveerd kan worden tot extra slaapkamer) en toegang tot de zolder.
De derde verdieping bestaat uit een zolder van ongeveer 27 m².

ALGEMEEN

Het woonhuis is volledig voorzien van aluminium kozijnen met dubbel glas, wat bijdraagt aan de isolatie en duurzaamheid van de woning.
De cv-ketel is een huurketel en kost €39,46 per maand.

VERDERE INFORMATIE

Disclaimer:
Deze presentatie is zo zorgvuldig mogelijk opgesteld, wijzigingen zijn voorbehouden, aangegeven maten zijn bij benadering. Aan deze presentatie kunnen dan ook geen rechten worden ontleend.

Schriftelijkheidsvereiste:
Ter bescherming van de belangen van zowel koper als verkoper, wordt uitdrukkelijk gesteld dat een koopovereenkomst met betrekking tot deze onroerende zaak eerst dan tot stand komt nadat koper en verkoper de koopovereenkomst hebben getekend.

Ontbinding:
De termijn die wordt opgenomen voor eventuele (overeengekomen) ontbindende voorwaarden (bijv. financieringsvoorbehoud) is in de regel 4 tot 6 weken na het sluiten van de mondelinge wilsovereenkomst.

Waarborgsom:
De waarborgsom/bankgarantie is 10% van de koopsom. De koper dient deze 3 dagen ná het vervallen van de ontbindende voorwaarden bij de desbetreffende notaris te deponeren.

Onderzoeksplicht van de koper:
Koper is te allen tijde gerechtigd voor eigen rekening een bouwkundige keuring te laten verrichten dan wel andere adviseurs te raadplegen teneinde een goed inzicht te verkrijgen over de staat van onderhoud.

Huurtoestellen:
Indien er in de woning huurtoestellen aanwezig zijn zoals CV-ketel, boiler, zonnepanelen, mechanische ventilatie etc. dan dienen deze door de koper te worden overgenomen.

Opkoopbescherming:
In de Gemeente Maastricht geldt vanaf 1 oktober 2022 een Huisvestingsverordening – opkoopbescherming voor woningen. Informeer bij de Gemeente Maastricht voor de voorwaarden.

Denkt u aan verkopen?

Heeft u interesse in een vrijblijvend verkoopadvies en bent u benieuwd naar onze werkwijze hoe wij uw woning succesvol kunnen verkopen?

Kenmerken

Overdracht
Aanvaarding: In overleg
Bouwvorm
Oppervlakte en inhoud
Indeling
Energie
Buitenruimte
Parkeergelegenheid
Secret Link